Description
Adaptor Kit suit GM T700/4L60/4L60E 4 Bolt Rear to 60/70 Series LandCruiser 19 Spline Split Transfer
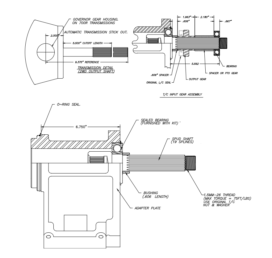
The GM 4L60E adapter to the Land Cruiser 19 spline transfer case is 6.750″ in length. And the overall length of the transmission and adapter is 30.50″. The adapter material is 356 T6 heat treated aluminum alloy. The adapter kit includes an adapter housing, spud shaft w/ 19 spline, GM VSS sensor, t-case shifter bracket, t-case bracket spacers, snap rings, retainer, sealed bearing, gasket, nylon lock nut, fastening hardware, and adapter instructions. Transfer case This adapter assembly fits August 1980 to 1989 transfer cases. The transfer case design was changed to a split-case design configuration with a 19 tooth internal spline on the input gear. Transmission The adapter kit is designed for exclusive use with a 2wd 4L60E with a non-removable bellhousing. This transmission is identical to the 700R / 4L60 except that it is an electronically controlled transmission. GM manufactures this transmission in two versions. Both of these transmissions use a reluctor ring connected to the GM engine computer for proper shifting points. The first version of this transmission is a mirror image of the 700R, but it requires a reluctor ring. For these kits we adapt around the 2WD version of this transmission. The kits require the use of a stock 2WD output shaft with the stock reluctor ring. You will be required to shorten this shaft as indicated on the instruction sheet provided in your kit. This housing is drilled and tapped for the stock reluctor ring pickup. The GM sensor for this housing is included in this kit and allows the proper signal to operate your transmission. 1 x CASTING (with sensor drilled) (Ref: 711189) 1 x SPUD SHAFT WITH 19 SPLINES (Ref: 711383) 1 x SENSOR 1 x TRANSFER CASE SHIFTER BRKT. 3 x TRANSFER CASE BRKT. SPACERS 1 x BUSHING/GEAR LOCATER 1 x SEALED BEARING 1 x SPECIAL SNAP RING FOR BEARING 1 x “O”-RING 1 x GASKET 1 x TRANSFER CASE FRONT INPUT SEAL 90316-48003 3 x 12mm-1.25 x 90mm LONG H.H.C.S. (transfer case to adapter housing bolts) 4 x 12mm-1.25 x 40mm LONG H.H.C.S. (transfer case to adapter housing bolts) 1 x 12mm-1.25 SET SCREW (INSTALLED) 3 x 3/8″-16 x 2-1/2″ S.H.C.S. 7 x FLAT WASHER 1 x 26mm – 1.5 SHAFT NUT
Fitting Notes
NOTE: This kit requires the 2WD output shaft to be shortened.





Reviews
There are no reviews yet